24 x 45 House Plan l East Facing House l 1080 sqft house design with car parking I Small House - Apna Ghar Construction
Welcome back to Apna Ghar Construction. According to vastu, we now have a plan 2BHK and 1BHK east facing house plan ( 24' x 45' ) Subscribe 💓
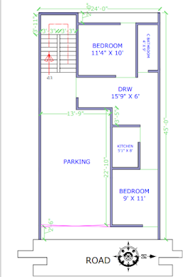
PLOT DETAILS -
Total plot area - 1080 square feet, 24' X 45' Feet
Built up area - 988 square feet
Ground Floor Plan - 2BHK WITH CAR PARKING
AREA MEASUREMENT
1.Car parking - 13'9" X 22'10" 2.Bedroom 1st - 11'4" X 10'
3.Bedroom 2nd - 9' X 11'
4.Kitchen - 5'1" X 8'
5.Bathroom - 4' X 9'
6.Drawing - 15'9" X 6'
![]() |
| Groun Floor Plan |
19 X 33 House Plan With South Facing l 19*30 House Plan With Car Parking I 627 Sqft House Plan - Apna Ghar Construction
First Floor Plan - 2BHK AND 1BHK
AREA MEASUREMENT
2BHK
1.Bedroom 1st - 11'4" X 10'
2.Bedroom 2nd - 9' X 11'
3.Kitchen - 5'1" X 8'
4.Bathroom - 4' X 9'
5.Drawing - 15'9" X 6'
1BHK
1.Bedroom 1st - 9'4" X 11'
2.Bathroom - 4' X 9'
3.Drawing - 13'9" X 11'5"
![]() |
| First Floor Plan |
24 by 45 Low Budget house plan l 24 by 45 Home Design l 24 by 45 house plan with front elevation
A home layout/plan is an areal overview of your plot that highlights the overall dimensions of your plot and the positioning of where your proposed house will be. This is very important because it will determine what other structure or compound space you will have in your plot after the house has been built.
You can contact me if you want service like. House Planning, Interior, Exterior, 3D animation, walk through, rendering , Estimate And Costing.
.png)
.png)
.png)
Comments
Post a Comment